Hämeenkatu 6, Hyvinkää | Maalaiskunnan toimitalo
Hämeenkadun ja Hyvinkään historiaa
Hyvinkäästä tuli kauppala vuonna 1926. Laaja maalaiskunta ympäröi kauppalaa ja 1960-1969 Hyvinkään kaupunkia.
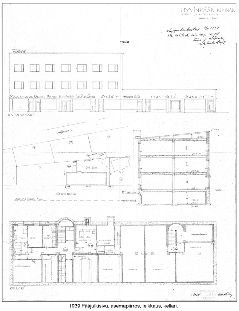
Ensimmäinen uuden keskusta-asemakaavan mukainen rakennus valmistui vuonna 1934. Se oli arkkitehti Väinö Vähäkallion suunnittelema Hyvinkään Säästöpankin punatiilinen liiketalo. Rakennusta on myöhemmin laajennettu Uudenmaankadun puolelle. Vähäkallio suunnitteli myös nykyisen Hyvinkään Musiikkiopiston talon, joka rakennettiin vuonna 1936, alunperin Kansallis-Osake-Pankin liiketaloksi. Vuodesta 1917 lähtien oli pankki toiminut eri rakennuksissa ja laman jälkeisen nousun alkaessa voitiin rakentaa oma rakennus. Shellin huoltamo valmistui vuonna 1935 ja sen piirustukset on allekirjoittanut Raoul Hollmström. Talossa toimii nykyään hampurilaisravintola. Ahjon uusi talo rakennettiin vanhan, pääkadusta sivuun jääneen talon tilalle vuonna 1936. Sen rakennutti Kulutusosuuskuntien Keskusliitto ja suunnitteli arkkitehti Georg Jägerroos. Rakennusta on sisätiloiltaan ja osiltaan ulkopuolelta muutettu vuosien kuluessa. Muutosten myötä rakennus on menettänyt osan alkuperäisestä ilmeestään. Väinö Donner, Villatehtaan isännöitsijä, teki aloitteen 1920-luvulla Pohjoismaiden Yhdyspankin (PYP) saamisesta Hyvinkäälle. Hyvinkäällä toimi jo silloin KOP ja Hyvinkään Säästöpankki. Keskustan funkispankkien jälkeen valmistui PYP:lle oma liiketalo arkkitehti Ole Gripenbergin suunnitelmien mukaan vuonna 1938. Funktionalistinen Hyvinkään maalaiskunnan talo valmistui Ahjon viereen vuonna 1939 Väinö Vähäkallion suunnitelmien mukaan. Sen alunperin yksikerroksista siipiosaa on korotettu samankorkuiseksi alkuperäisen rakennuksen korkeamma osan kanssa arkkitehti Eero Eerikäisen toimesta1961 kahdella kerroksella ja jatkettu lisärakennusosa takapuolelle 1961-62 jolloin rakennus sai nykyisen ulkomuotonsa.

Ykköskorttelin ja Maalaiskunnan talon historiaa
Hämeenkatu 6:dessa sijaitsi Maalaiskunnan toimitalo, jossa sijaitsi myös kunnan sairaala ja esimerkiksi Osuuskassa, valmistui vuonna 1939. Rakennuksen idänpuoleinen matala liikesiipi korotettiin myöhemmin 1961 arkkitehti Eero Eerikäisen toimesta, tarkalla silmällä katsottuna rakennuksen maalaus kertoo laajennusosan rajat. Rakennuksen 1939 piirustukset tehtiin Väinö Vähäkallion arkkitehtitoimistossa, rakennus on kaavalla suojeltu.
Maalaiskunnan rakennuksen kivijalka ja liikkeiden rappuset on Hyvinkäältä louhittua gabroa ”mustaa graniittia”, samaa kiveä kuin muun muassa tavaratalo Helsingin Stockmannin kivijalka.
Valmistuessaan Maalaiskunnan talo oli alueensa korkein rakennus. Rakennus on elänyt voimakkaasti Hyvinkään keskustakehityksen mukana kohta 70 vuotisen historiansa aikana ja sen toiminta ja sisätilat ovat aina päivittyneet kuilloisenkin tarpeen mukaan.
2000-luvulla Hyvinkään ykköskortteli koki suuren muutoksen korttelin sisä ja takaosien mittavan täydennysrakentamisen seurauksena. Korttelin rakennuskokonaisuus - liikekeskus 20 toimijalle - toimiikin ajalle ominaisesti monialaisena palvelukeskuksena hotellipalveluista Terveystaloon ja pankkitoimintaan, Maalaiskunnan toimitalon perinteiden mukaisesti. Maalaiskunnan toimitalossa toimii tällä hetkellä mm. Hyvinkään Sosiaalitoimi.
Ykköskortteli on Hyvinkään vanhimpia keskustakortteleita, jota rajaavat pääkatu Hämeenkatu, Kauppalankatu, Ahjonkatu ja Sillankorvankatu. Ykköskorttelin koheneminen on osa mittavaa Hyvinkään keskustan kehittämissuunnitelmaa.
Funktionalistista tyylisuuntaa edustava Hopealyhdyn – ja muiden hotelli Cumuluksen ravintoloiden – talo osoitteessa Hämeenkatu 2 on vuodelta 1935. Suunnittelija oli arkkitehti Georg Jägerroos ja talo alun perin Osuusliike Ahjolle rakennettu. Ahjo oli tiettävästi Suomen ensimmäinen tavaratalo Helsingin ulkopuolella. Talo on suojeltu.
Vieressä Hämeenkatu 4:ssä on liikerakennus, jossa viimeksi ennen saneerausta toimi Euromarket. Sen julkisivu henki 1970-luvun marketmaista tyyliä. Viimeisenä jonossa, Hämeenkatu 6:ssa on Maalaiskunnan talo, joka on valmistunut vuonna 1940. Sen suunnitteli arkkitehti Väinö Vähäkallio. Myös tämä talo on suojeltu.
Nämä kolme taloa korttelissa olivat saneerauksen ja uudisrakentamisen lähtökohta. Rakennuttajana toimi korttelin omistaja Bra Kiinteistöt Oy. Pääsuunnittelijana työskenteli arkkitehti Harri Koskinen Arkkitehtitoimisto Larkas & Laine Oy:stä. Vuokrattavaa liiketilaa on 11 800 neliömetriä ja toimijoita 20. Suurimpiin toimijoihin kuuluu Cumulus-hotelli, joka sai uudisrakennukseen 66 hotellihuonetta lisää. Muita suuria toimijoita ovat Terveystalo, liikunta- ja hyvinvointikeskus Lady-Atlas, Adecco, Tapiola, Sampo-pankki, If-vakuutusyhtiö ja Handelsbanken. Ykköskortteli on nyt terveys- ja hyvinvointipalveluiden ja finanssialan keskittymä. Palvelutarjontaa täydentävät vielä hotelli ravintoloineen ja lukuisat pienemmät liikkeet.

30 vuoden aikana on ollut ainakin kuusi erilaista suunnitelmaa Ykköskorttelin kehittämiseksi. Bra Kiinteistöjen tultua omistajaksi 2000-luvulla, suunnitelmissa oli aluksi kauppakeskus hotelli Cumuluksen laajennuksen lisäksi. Kauppakeskuksesta luovuttiin, ja tilalle alettiin suunnitella pienimuotoisempaa liikekeskusta, joka itse asiassa lopulta sopii kortteliin erittäin hyvin. Asemakaavan muutos sisältää edelleen noin 7 000 neliötä enemmän rakennusoikeutta kuin nyt on käytetty. Saneerausten ja uudisrakennuksen lisäksi korttelin keskiosiin rakennettiin kaksi pysäköintikantta. Olennainen osa korttelia ovat myös Ahjonkadun puolelle nousevat kolme kahdeksankerroksista kerrostaloa, joihin tuli 130 asuntoa. Ensimmäinen talo valmistui joulukuussa 2012. Vanhat rakennukset ovat Hämeenkadun varressa, ja täydennysrakentaminen sijoittui niiden taakse korttelin sisään. Aika pieni osa uudesta ykköskorttelista näkyy tällä hetekellä Hämeenkadun puolelle – niin hyvin se on häivytetty korttelin sisään.
Kolmesta vanhasta rakennuksesta keskimmäinen, entinen Euromarketin talo, koki ulospäin näkyvimmät muutokset: sen betonijulkisivun 1970-luvun henkistä kennomaisuutta häivytettiin alafriiseillä ja ikkunasäleiköillä. Arkadi säilyi melko maltillisin korjauksin itse asiassa hyvin. Kun molemmin puolin on suojellut rakennukset, rakennusta sopeutettiin ympäristöön, Taloon on rakennettu uusia sisäänkäyntejä ja puhkottu kaavan edellyttämä läpikulku korttelin sisäosiin. Alakertaan sijoittuvat liikunta- ja hyvnvointikeskus Lady-Atlas ja Terveystalo, jolla on tiloja myös uudisrakennuksessa. Maalaiskunnan suojeltu talo, Hämeenkatu 6, jätettiin ulkonäöltään saneerauksessa melko ennalleen. Sen takaa purettiin vanha hammashoitola, jotta saatiin pysäköinnille tilaa. Ahjon suojeltu funktionalismia edustava talo, Hämeenkatu 2, jäi sisätiloiltaan suureksi osaksi saneerauksen ulkopuolelle – lukuun ottamatta talotekniikkaa ja esimerkiksi hotellin aulan uusimista sekä välttämättömiä laajennusosaan liittyviä käytäviä ja poistumisjärjestelyjä. Kolmikerroksinen uudisrakennus on linjakas ja funktionalismia noudatteleva pyöreätä kulmaansa myöten. Julkisivu on perinteistä vaaleata rapattua pintaa ja lasia.
Hyvinkään kaupungin pääkatuna Hämeenkadun katumaisema on muuttunut osin hyvinkin moderniksi kehykseksi keskustan vanhoille arvorakennuksille.
Bra Kiinteistöt Oy:n puolesta
Petri S.K. Ilmarinen
Arkkitehti SAFA, M.Sc.Arch.USA
DPI-U2 Arkkitehdit | Design Petri Ilmarinen Oy


